Vibemosen 84, 2670 Greve
Enestående ved mosens bred
Solgt
Fakta om denne bolig
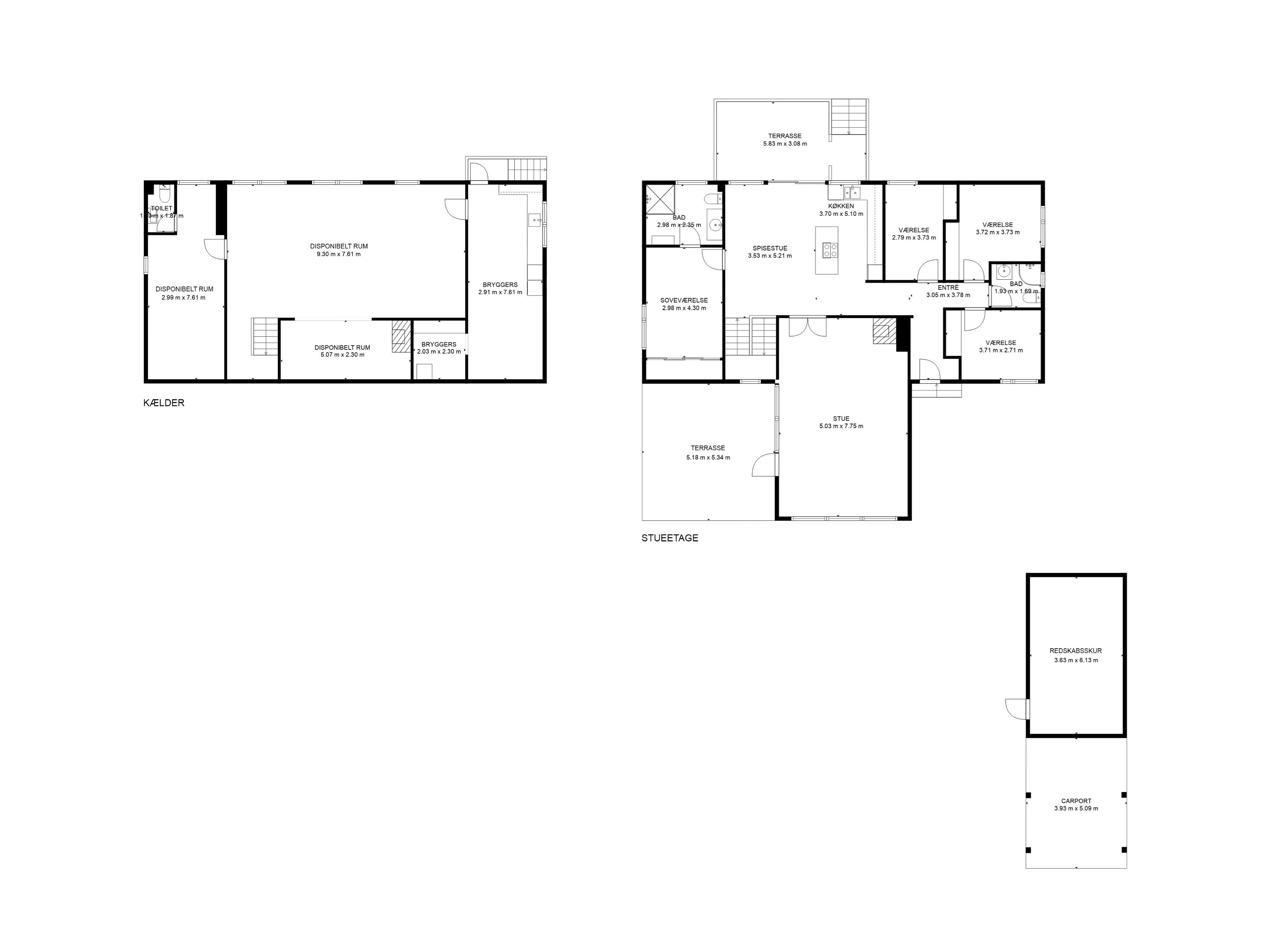
Boligareal:
Kælderareal
Rum:
Grund:
Antal plan:
Byggeår:
Sagsnr.:
Energimærke:
165 m2
135 m2
6
1039 m2
2
1974
SC10289
B
Skal vi også sælge din bolig? Bestil en gratis og uforpligtende salgsvurdering
BOLIGBESKRIVELSE
I første række til mosens bred med en betagende udsigt til det grønne og den omkringliggende natur. 300 kvadratmeter, hvoraf 135 udgør en høj kælder/underetage, fremtræder denne enestående ejendom, som den perfekte ramme for både små og store.
Den kuperede have med sine høje træer og frodige beplantning skaber en fredfyldt oase. Her finder du en stor, ugeneret fliseterrasse, hvor el-markisen kan køres ud for at skabe svalende skygge på solrige dage. Den solrige, høje balkon/terrasse med trappe til græsplænen giver en fantastisk udsigt til mosen. Desuden er der en rummelig carport på 48 kvm med isoleret udhus, der sikrer masser af opbevaringsplads.
Ejendommen er energirigtig med en luft-til-vand varmepumpe og solcelleanlæg. Tegnet af arkitekt Jørgen Brendholdt og sidenhen nænsomt vedligeholdt og moderniseret, fremstår huset tidssvarende og velholdt. Forældresoveværelset er en privat oase med en skabsvæg og adgang til et smukt moderniseret, lyst badeværelse med glasbrusehjørne. Et andet badeværelse i samme lyse og indbydende stil er tilgængeligt for resten af familien. De tre rummelige børneværelser, alle med indbyggede skabe, sikrer masser af opbevaringsplads og orden. Husets hjerte er det store leverum, hvor samtalekøkken og spisestue flyder sammen i en harmonisk enhed. De blanke mure og skydedøren til balkonen/terrassen lader lys og natur strømme ind, mens det elegante samtalekøkken med kogeø og HTH skabselementer i råhvid højglans fremstår tidløst og klassisk. Opholdsstuen, med sin murede hjørnepejs med indsats og skydedør til terrassen og haven. Et hyggeligt rum, hvor familien kan samles omkring pejsens varme. Den høje, tørre kælder/underetage byder på en stor gildestue med muret pejs – et ideelt rum til teenagebørnene. Her findes også en flot vaskekælder med trappe til haven, et kreativt hobbyrum og et disponibelt rum indrettet som motionsrum.
Enestående ejendom ved mosens bred skaber en mavefornemmelse af hjem.


